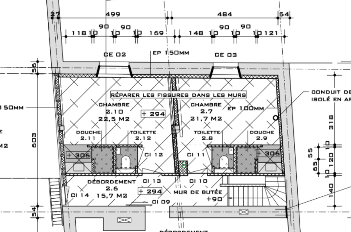
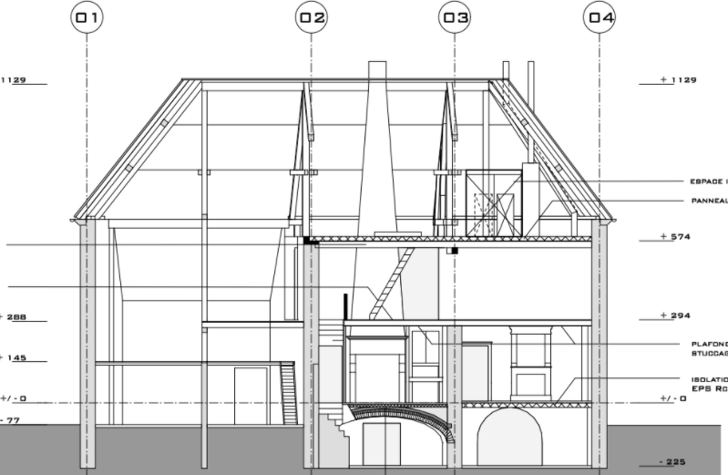
Plan de campagne
Dacht je dat het aankoopproces tijdrovend was? Tussen de eerste bezichtiging ´dans son jus´eind januari 2021 en de ontvangst van de sleutel half augustus zaten 7 intensieve maanden. En dat was niets vergeleken met de tijd van het sloopwerk tot nu, een periode met vele fases waarin we aan het opbouwen zijn. Wel veel leuker natuurlijk! We zijn al een heel eind en er is ook nog genoeg te doen. En ja daar horen ook de momenten bij dat je denkt ẃaar zijn we aan begonnen? Langzaam hebben we een balans gevonden tussen wat we zelf willen en kunnen doen (applaus voor vrienden en familie) en wat we graag met lokale materialen en de lokale artisan willen aanpakken. Hieronder alvast een sfeerimpressie. En wil je up to date blijven? Volg ons dan op instagram.















































































































































































































































































































































































